50
$699,000 Sale
Listed 2 hours ago
340 Boyd Street
· 0
· 0
· -
· -
Listing History
Buy/Sell/Terminated/Expired listing history for 340 Boyd Street
Key Facts
Key facts for 340 Boyd Street
Property Type
Commercial
Parking
In/Out
MLS #
X12449927
Size
-
Basement
-
Listed on
2025-10-06
Lot size
107 x 70.13
Tax
$4,209.10 /yr
Days on Market
1
Approximate Age
-
Maintenance Fee
-
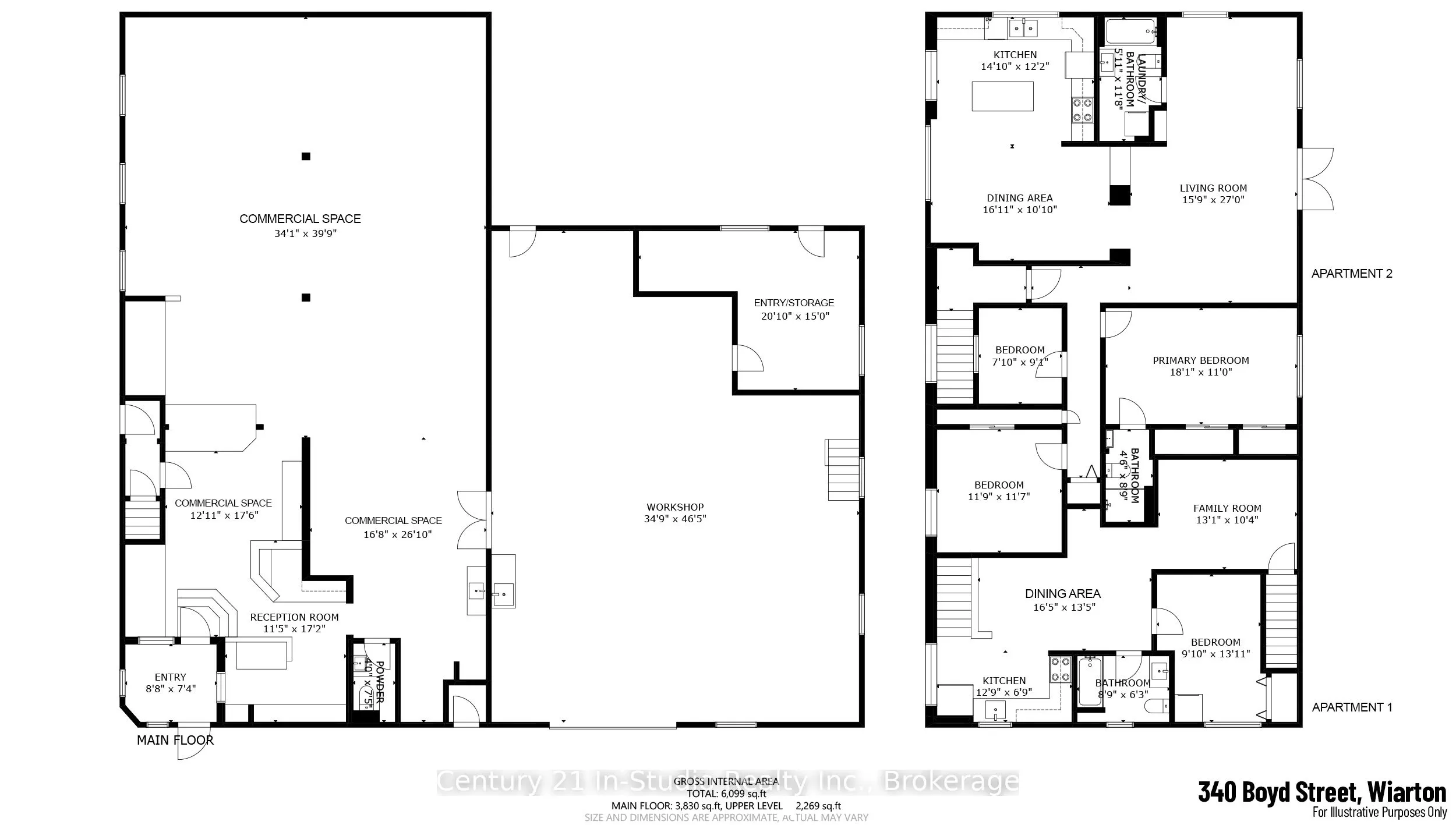
Description
Welcome to 340 Boyd Street located with beautiful views of Georgian Bay in Wiarton, Ontario. This High-Exposure Investment Property is a Mixed-Use Building located in Wiarton, Ontario. Home of the famous Wiarton Willie. This property presents an exceptional opportunity for investors or owner-operato...rs to acquire a nearly 6,100 sq ft mixed-use building in a prime location. With 3,830 sq ft of commercial space on the main level and two residential units above, this property is both flexible and income-generating. The commercial Space is divided into two functional areas: One space is a large storefront ideal for retail, office, or customer-facing business. The second space offers a heated garage/workshop featuring: 12 x 12 overhead door with commercial garage door opener, Loft storage area and a Bonus rear room with a separate entrance ideal for subleasing or additional workspace. Zoned C1B, allowing a wide range of commercial uses. Residential Units (located on the 2nd level) 3-Bedroom Apartment with beautiful views of Georgian Bay from the living room, kitchen and deck. This apartment has been newly repainted and the two bathrooms have been fully renovated in 2025 with in-suit laundry. The kitchen has been refreshed with a beautiful block island top and new tile backsplash. The 1 bedroom apartment was renovated and includes a full kitchen, dining, in-suite laundry, living room, and 2 separate entrances. Whether you're looking to live at the property and run your business, generate rental income, or lease out the entire property, 340 Boyd Street offers outstanding potential in a growing community.
Similar Properties (No results)
Courtesy of: Century 21 In-Studio Realty Inc.